Select to view content in your preferred language

Creating a "many to one" annotation to feature layer CAD translation?

1216
2
Jump to solution
06-15-2023 09:50 AM
KevinDyke
Occasional Contributor

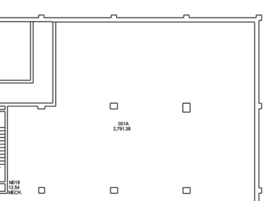
I am just getting started with Indoors and have received CAD files for our facility. For the units layer, there are multiple annotation anchor points, and only one makes it into the target field. Since I don't have control over how the CAD is created or organized, is there a way for me to instruct the import CAD script to capture all annotations? For a specific example, see the image below. I want the 001A to be carried over, but instead M018 is the only thing that makes it.

KevinDyke_0-1686847729801.png

Or do I need to do some manual splitting/filtering of the input CAD prior to running the script? Thanks for any guidance.

1 Solution

Accepted Solutions
JasonHineEsri
Regular Contributor

Hi Kevin,

Thanks for the detailed question and example screenshot! Unfortunately, as you've discovered, when there are multiple CAD annotations in a unit space (like in your example), ArcGIS Indoors will only import one of them. 

The Import Floorplans To Indoors Geodatabase tool uses the CAD annotation's anchor point to determine the associated unit space. The preferred way to address the issue in your example would be to reposition the CAD annotation for M018 so that its anchor point is positioned in the correct unit space, rather than in unit 001A. You mention that you don't have control over how the CAD data is organized, so that may not be an option for you.

If you aren't able to make changes to the CAD files, then you'll need to address such issues in the GIS data after import. Here's a workflow to do that:

1. Add the Units feature class and the georeferenced CAD file's Annotation feature class to a map in Pro.

2. In the map's Contents panel, turn off all Annotation group sublayers except the one with the values of interest (e.g., if the values "M018" and "001A" are in a sublayer named A-AREA-NAME, turn off all sublayers except A-AREA-NAME).

3. Select Units features where the attribute of interest (e.g., Name) is null. Filter the attribute table to show only selected rows.

4. Right-click a row and Zoom To the Units feature. Zoom the map out a bit and look for the associated Annotation feature -- in your example, I think the Annotation feature showing M018 would be just to the right of the selected unit.

5. Click the null Units attribute value and enter the Annotation value ("M018" in your example). To reduce typing, you could click the associated Annotation feature, copy the value from the Popup (or Attributes) panel, and paste the value into the Units attribute.

6. Repeat for remaining rows in the filtered Units attribute table. Save edits. 

Lastly, if you're familiar with either ArcGIS Data Reviewer (requires Data Reviewer license) or ArcGIS Pro's Error Inspector, you could use one of those tools to help you find and address geometry and attribute issues in the imported data.

Hope that helps!

Jason

View solution in original post

2 Replies
JasonHineEsri
Regular Contributor

Hi Kevin,

Thanks for the detailed question and example screenshot! Unfortunately, as you've discovered, when there are multiple CAD annotations in a unit space (like in your example), ArcGIS Indoors will only import one of them. 

The Import Floorplans To Indoors Geodatabase tool uses the CAD annotation's anchor point to determine the associated unit space. The preferred way to address the issue in your example would be to reposition the CAD annotation for M018 so that its anchor point is positioned in the correct unit space, rather than in unit 001A. You mention that you don't have control over how the CAD data is organized, so that may not be an option for you.

If you aren't able to make changes to the CAD files, then you'll need to address such issues in the GIS data after import. Here's a workflow to do that:

1. Add the Units feature class and the georeferenced CAD file's Annotation feature class to a map in Pro.

2. In the map's Contents panel, turn off all Annotation group sublayers except the one with the values of interest (e.g., if the values "M018" and "001A" are in a sublayer named A-AREA-NAME, turn off all sublayers except A-AREA-NAME).

3. Select Units features where the attribute of interest (e.g., Name) is null. Filter the attribute table to show only selected rows.

4. Right-click a row and Zoom To the Units feature. Zoom the map out a bit and look for the associated Annotation feature -- in your example, I think the Annotation feature showing M018 would be just to the right of the selected unit.

5. Click the null Units attribute value and enter the Annotation value ("M018" in your example). To reduce typing, you could click the associated Annotation feature, copy the value from the Popup (or Attributes) panel, and paste the value into the Units attribute.

6. Repeat for remaining rows in the filtered Units attribute table. Save edits. 

Lastly, if you're familiar with either ArcGIS Data Reviewer (requires Data Reviewer license) or ArcGIS Pro's Error Inspector, you could use one of those tools to help you find and address geometry and attribute issues in the imported data.

Hope that helps!

Jason

KevinDyke
Occasional Contributor

Thanks so much Jason, I appreciate your thorough response. I wanted to make sure I wasn't missing something, and your suggested workflow seems very doable. Thanks again!